Вы находитесь: Codziennik Muzealny - Dlaczego muzealny budynek jest „dwutraktowy”?

Codziennik Muzealny - Dlaczego muzealny budynek jest „dwutraktowy”?

Codziennik Muzealny - Dlaczego muzealny budynek jest „dwutraktowy”?

Среда
15
Апрель
2020

W ramach „Codziennika muzealnego” chcielibyśmy zaproponować Państwu cykl tekstów, w których przybliżymy terminy używane w budownictwie wiejskim. Postaramy się, by w każdym materiale znalazły się również ciekawostki i trochę historii z zakresu budownictwa. Życzymy miłej lektury!

W literaturze do połowy XIX wieku pojawiały się piękne opisy budynków wiejskich. Romantycy tacy jak Adam Mickiewicz pisali o nich tak:

Na pagórku niewielkim, we brzozowym gaju,
Stał dwór szlachecki, z drzewa, lecz podmurowany;
Świeciły się z daleka pobielane ściany,
Tym bielsze, że odbite od ciemnej zieleni
Topoli, co go bronią od wiatrów jesieni.
Dom mieszkalny niewielki, lecz zewsząd chędogi,
I stodołę miał wielką, i przy niej trzy stogi
Użątku, co pod strzechą zmieścić się nie może.

(A. Mickiewicz, Pan Tadeusz Księga Pierwsza, Spółdzielnia Wydawnicza „Czytelnik”, Warszawa 1995, str. 12)

Dopiero w drugiej połowie XIX wieku budownictwem wiejskim zaczęto zajmować się od strony naukowo-badawczej. Wtedy to, pierwsi badacze zaczęli opisywać budownictwo wiejskie pod kątem technicznym, wyodrębniając je, jako oddzielny przedmiot badań.
Klasyfikację układu wnętrz chałup wiejskich w Polsce w oparciu o układ pomieszczeń, umiejscowienie wejścia i liczbę pomieszczeń przeprowadzono na przełomie XIX i XX wieku.

Pierwszym twórca takiej typologii był Jan Karłowicz:

Najczęstszy typ polski ma następujące znamiona:
Zasadniczy jest: wschód do chałupy w połowie długości dłuższej ściany, a zatem od dziedzińca; po wejściu sień, zajmująca środek domu, idąca na przestrzał, lub też przedzielona ścianką, za którą są wschody na strych, lub jakieś składy, ptastwo domowe itd.[;] po obu stronach sieni dwie izby rogowate; z tych jedna mająca okna na ulicę, właściwie mieszkalna, piecem, stołem łożem i itd.…

(J. Karłowicz, Chata polska. Studyjum lingwistyczno-archeologiczne, Druk J. Bergera, Elektoralna.Nr. 14, Warszawa 1884, s. 398)

W pierwszych technicznych opisach domów, które publikowali badacze kultury ludowej, przeplatają się te zagadnienia razem z elementami etnograficznymi. Te drugie dotyczyły wyposażenia wnętrz, kolorów ścian, terenów wokół budynków, inwentarza żywego czy związanymi z budownictwem tradycjami. W taki sposób budynki opisywał również etnograf i wybitny badacz Podlasia Zygmunt Gloger:

„Szlachcic dziedziczny zagrodowy(a miała Polska takiej szlachty moc wielką, zwłaszcza na Mazowszu i Podlasiu, skąd rozchodziła się ona po całej dawnej Polsce) o ile własnoręcznie uprawiając rolę obywał się bez czeladzi, budował sobie zawsze w dawnych czasach chałupę jednoizbową, tj. obejmującą w sobie: w jednym rogu sień wchodową, w drugim główną izbę mieszkalną, w trzecim poza izbą komorę, w czwartym wprost sieni, świotełkę. […]Chata powyższa budowana ze smolnego starodrzewu sosnowego liczyć może około dwóch wieków swego istnienia. Wszystkie drzwi ma jeszcze na biegunach drewnianych t. j. bez zawias żelaznych, i wszystkie prostu „trojakami, jednoizbowymi” lub „mazowiecko- podlaskimi”
(Z. Gloger, Budownictwo drzewne i wyroby z drzewa w dawnej Polsce, Drukarnia Piotra Laskauera i S-ki, Warszawa 1903, str. 150)

Właśnie naukowe podejście do badań nad budownictwem wiejskim w Polsce, pozwoliło na rozpoznanie i wyodrębnienie cech charakterystycznych budynków w różnych regionach Polski. Obok takich cech, jak technologia budowy, materiał czy zdobienia architektoniczne, pojawia się układ pomieszczeń, który w opisach technicznych określa się „traktem”. „Trakt” stał się na tyle ważną cechą budynków mieszkalnych, że na jej podstawie określano typy budynków mieszkalnych. W budownictwie termin ten opisywany jest, jako:

„ciąg pomieszczeń w budynku, umieszczonych na jednej osi”
(Słownik języka polskiego, Tom trzeci R-Z, PWN, Warszawa 1981, str. 522)

Warto w tym miejscu nadmienić, że jednym ze zwolenników tej typologii był prof. Ignacy Tłoczek. Jego badania i praca na SGGW w Warszawie sprawiły, że budownictwo wiejskie podniesione zostało do rangi dyscypliny naukowej. Profesor Tłoczek zapisał się również na kartach historii Muzeum Rolnictwa w Ciechanowcu. Był on, bowiem głównym projektantem naszego skansenu. O nim i o innych zasłużonych przeczytać można w zakładce „Zasłużeni dla Muzeum Rolnictwa”.
Obok prof. Ignacego Tłoczka wprowadzenie pojęcia „traktu” promowali Gerard Ciołek, Jerzy Czajkowski czy Witold Krassowski.
O traktach w architekturze pisze również inna osoba związana z naszym muzeum, a mianowicie prof. Marian Pokropek, który był autorem scenariuszy pierwszych muzealnych wystaw:

„W tej klasyfikacji podstawowym pojęciem był „trakt”, którym określano układ pomieszczeń na jednej osi budynku. Biorąc to pod uwagę, powstało, więc rozróżnienie chałup, domów na „jednotraktowe” i „dwutraktowe” oraz formy pośrednie, takie jak: „chałupa półtoratraktowa”, „dośrodkowa”. Do domów jednotraktowych zaliczano te, w których wszystkie pomieszczenia (w tym sień) były ułożone w rzędzie i miały szerokość równą szerokości domu, czyli zajmowały przestrzeń wyznaczoną wzdłużnymi ścianami.”
(M. Pokropek, Etnografia, Materialna kultura ludowa Polski na tle porównawczym, PWN, Warszawa 2019, str. 224)

Zaczniemy od układu „jednotraktowego”
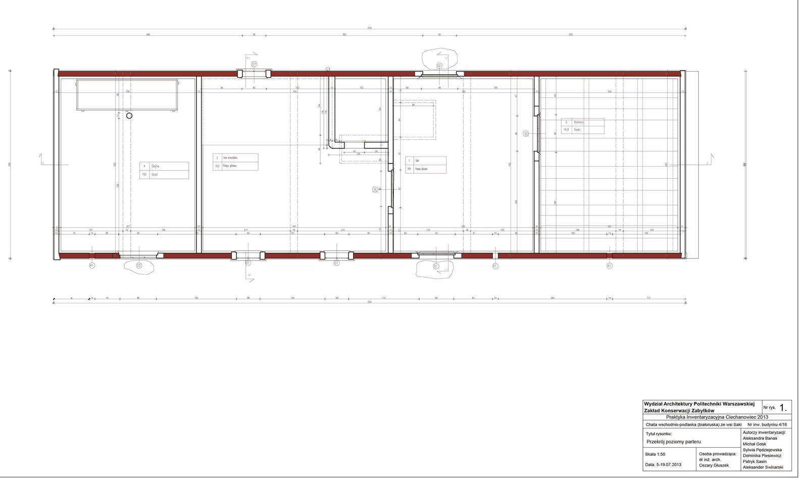
Do bardzo ciekawych obiektów wśród kolekcji Muzeum Rolnictwa należy „jednotraktowa” chata z miejscowości Saki wybudowana w połowie XIX wieku. Potocznie nazywamy ją „chatą białoruską”. Wnętrze budynku na całej swojej długości ma pomieszczenia o szerokości ścian szczytowych ustawione w jednym ciągu. Taki układ tworzy jeden „trakt”.
Więcej informacji na temat pokazanych tu budynków, opisy ich pięknych wnętrz, historię skansenu oraz opisy ekspozycji odnaleźć można w naszym muzealnym albumie „Skansen Mazowiecko-Podlaski”, który mogą państwo kupić na naszej stronie internetowej.


Chata z miejscowości Saki, II poł. XIX w.( rys. J. Majsak, Ciechanowiec, lipiec 2016)


Inwentaryzacja budynku jednotraktowego (Wydział Architektury Politechniki Warszawskiej, Zakład Konserwacji Zabytków)

Układ „półtoratraktowy”
Kolejny przykład budynku mieszkalnego, to typ obiektu posiadający „półtoratraktowy” podział wnętrza.
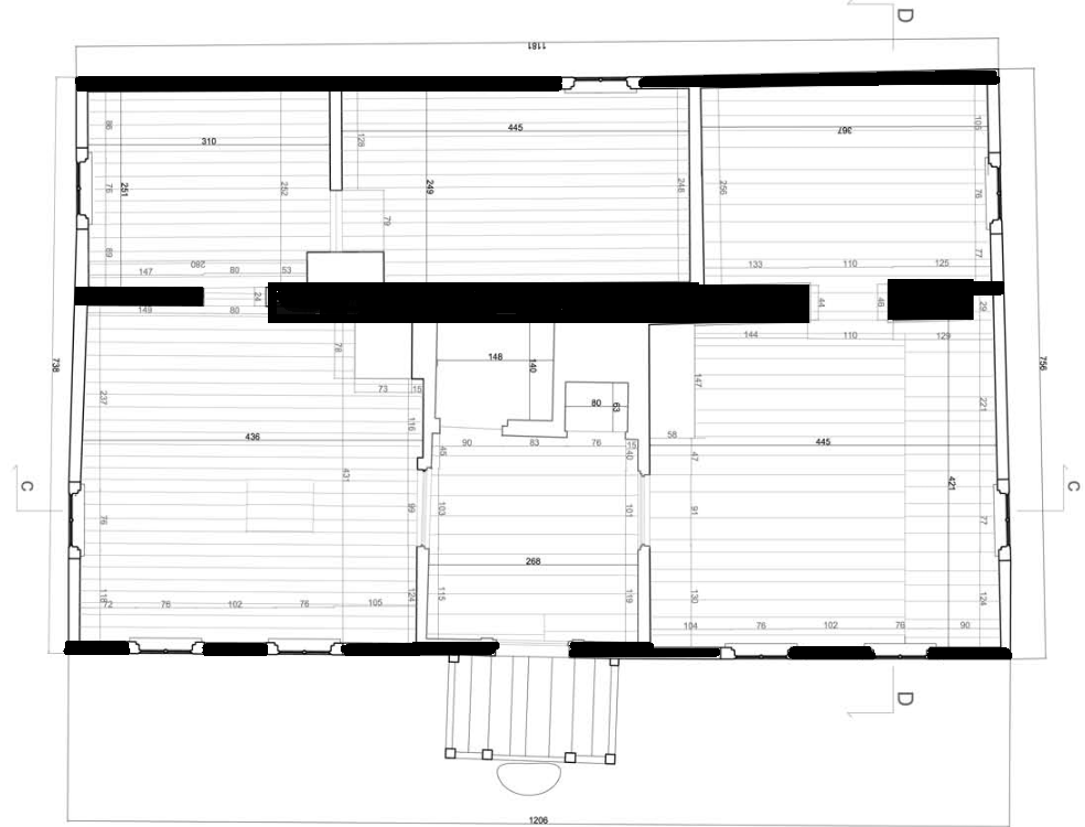
Ten typ budynku w naszym skansenie reprezentuje chałupa z miejscowości Piętki Gręzki z 1851 r. W jej przypadku wnętrze podzialone zostało na trzy pomieszczenia: sień, izbę i komórkę. Sień wraz z komorą tworzą jeden „trakt”, natomiast izba, której szerokość jest równa szerokości budynku określimy tu jako „pół traktu” ponieważ pełny „takt” wystapiłby dopiero w momencie podziału izby ścianą. Obiekt ten nazywany jest również „trojakiem” ale o tym w kolejnym tekście.


Chata z Piętki Gręzki (rys. Z. Słabik, Ciechanowiec, lipiec 2016)


Inwentaryzacja wnętrza półtoratraktowego (Wydział Architektury Politechniki Warszawskiej, Zakład Konserwacji Zabytków)

Układ „dwutraktowy”
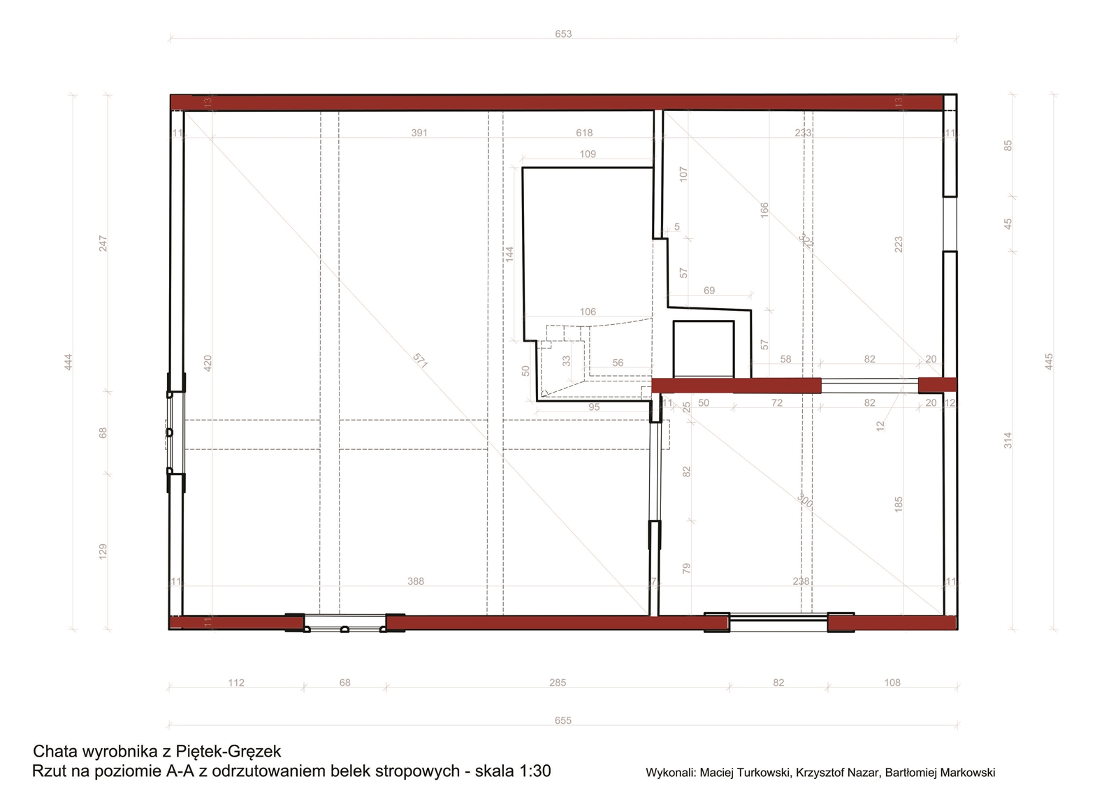
Ostatnim przykładem rodzaju traktów jest obiekt „dwutraktowy”. Takim budynkiem jest dworek z miejscowości Zaręby z 1841 r. Dworek ten zna cała Polska, choć może nie wie, że jest to jeden z obiektów w naszym muzeum. Obiekt ten oraz wnętrze wspomnianej wcześniej „jednotraktowej” chaty widziało dzięki wokalistce Cleo prawie 74 000 000 osób.


Dworek z miejscowości Zaręby (rys. M. Mąka, Ciechanowiec, lipiec 2011)


Inwentaryzacja obiektu dwutraktowego (Wydział Architektury Politechniki Warszawskiej, Zakład Konserwacji Zabytków)

Mam nadzieję, że przedstawione tu rodzaje budynków, odrobina historii i prace wykonane przez studentów Wydziału Architektury Politechniki Warszawskiej przybliżyły Państwu, pojecie „traktu” w budownictwie wiejskim.

Ciąg dalszy nastąpi…
Edwin A. Wilbik, kierownik działu Budownictwa Wiejskiego