Sie Sind auf: Inwentaryzacja zabytków

Inwentaryzacja zabytków

Inwentaryzacja zabytków

Freitag
05
Juli
2013

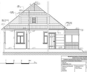
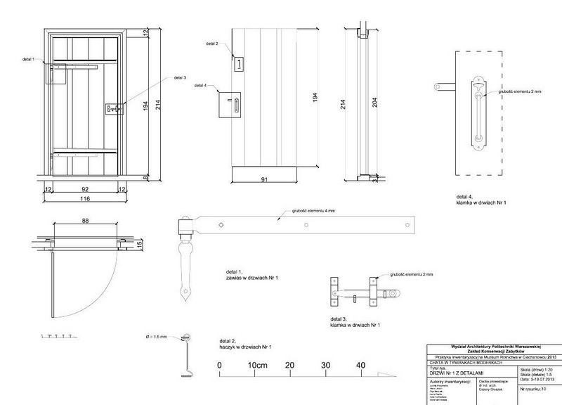
W Muzeum Rolnictwa w ramach współpracy z Zakładem Konserwacji Zabytków Politechniki Warszawskiej w dn. 5-19 lipca 2013 roku, odbyły się praktyki studentów Wydziału Architektury. W praktykach uczestniczyło 22 studentów I roku pod opieką dr inż. arch. Cezarego Głuszka. Studenci wykonali inwentaryzację architektoniczną dwóch obiektów wpisanych do rejestru zabytków celem uzupełnienia istniejącej dokumentacji w dziale budownictwa. Harmonogram praktyk obejmował również szkice obiektów i detali architektonicznych pod kierunkiem mistrza rysunku Adama Suflińskiego.

W tym roku po raz pierwszy studenci zmierzyli się z zabytkami w terenie, które stoją niezamieszkałe od wielu lat. Obiekty przeznaczone do rozbiórki, mocno nadszarpnięte przez czas, w których zachowało się bardzo dużo motywów zdobniczych integralnie związanych z terenem ich występowania.

Inwentaryzacja nielicznych obiektów drewnianych z początku XX wieku jest jedyną formą ratowania wiedzy o zasobach zabytków dla przyszłych pokoleń. Wykonana inwentaryzacja chat w miejscowościach Łuniewo Wielkie i Tymianki Moderki została przeprowadzona na obiektach o dużej symbolice zdobień, które nie zostały wpisane do rejestru zabytków. Reprezentują one architekturę zachodniego podlasia, której piękno odkrył już w latach 50- tych inspirator powstania Muzeum Rolnictwa w Ciechanowcu prof. I.Tłoczek. Ten wielce zasłużony dla Polskiej architektury naukowiec, tak opisuje związek zdobnictwa z funkcją domu "Zdobnictwo w architekturze drewnianej jest integralnie związane z funkcją budynku i jego elementów, a także z rodzajem tworzywa. Sylwetka bryły, proporcje między wymiarami zrębu i dachu, kształt okien i drzwi - są ukształtowane w zgodzie z założeniem użytkowym i konstrukcyjnym. W żadnym innym dziale architektury zagadnienie jedności funkcji, konstrukcji i piękna nie występuje tak konsekwentnie i tak czytelnie jak w budownictwie drewnianym".

Sylwester Czołomiej

Inwentaryzacja zabytków
Inwentaryzacja zabytków
Inwentaryzacja zabytków
Inwentaryzacja zabytków
Inwentaryzacja zabytków
Inwentaryzacja zabytków
Inwentaryzacja zabytków
Inwentaryzacja zabytków
Inwentaryzacja zabytków
Inwentaryzacja zabytków
Inwentaryzacja zabytków
Inwentaryzacja zabytków
Inwentaryzacja zabytków
Inwentaryzacja zabytków
Inwentaryzacja zabytków
Inwentaryzacja zabytków
Inwentaryzacja zabytków
Inwentaryzacja zabytków
Inwentaryzacja zabytków
Inwentaryzacja zabytków
Inwentaryzacja zabytków
Inwentaryzacja zabytków
Inwentaryzacja zabytków
Inwentaryzacja zabytków
Inwentaryzacja zabytków
Inwentaryzacja zabytków
Inwentaryzacja zabytków
Inwentaryzacja zabytków
Inwentaryzacja zabytków
Inwentaryzacja zabytków
Inwentaryzacja zabytków
Inwentaryzacja zabytków
Inwentaryzacja zabytków
Inwentaryzacja zabytków
Inwentaryzacja zabytków
Inwentaryzacja zabytków
Inwentaryzacja zabytków
Inwentaryzacja zabytków
Inwentaryzacja zabytków
Inwentaryzacja zabytków