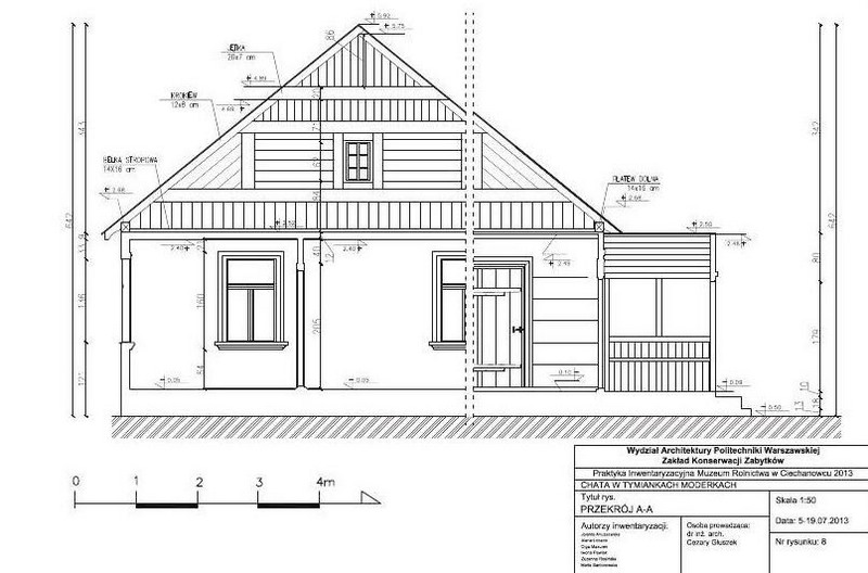
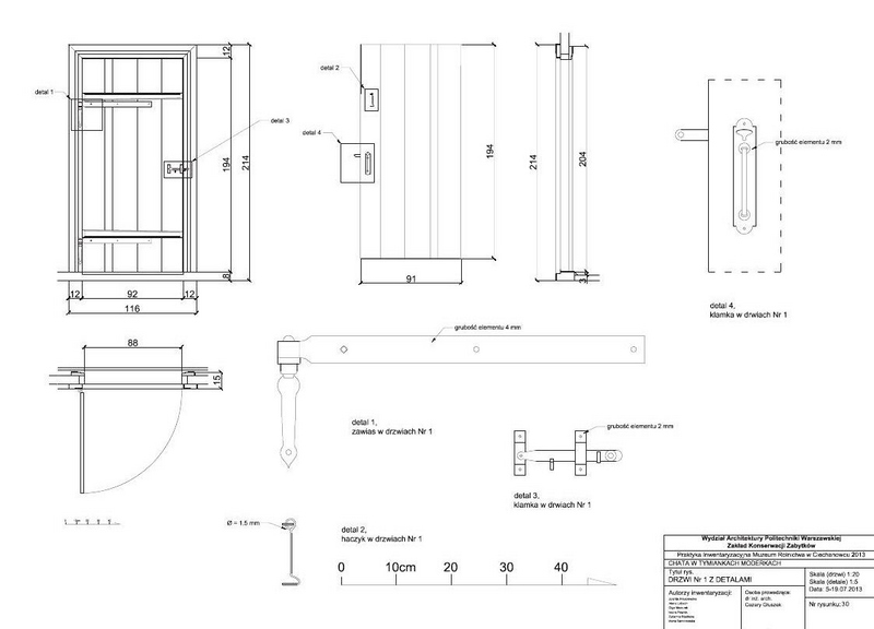
W Muzeum Rolnictwa w ramach współpracy z Zakładem Konserwacji Zabytków Politechniki Warszawskiej w dn. 5-19 lipca 2013 roku, odbyły się praktyki studentów Wydziału Architektury. W praktykach uczestniczyło 22 studentów I roku pod opieką dr inż. arch. Cezarego Głuszka. Studenci wykonali inwentaryzację architektoniczną dwóch obiektów wpisanych do rejestru zabytków celem uzupełnienia istniejącej dokumentacji w dziale budownictwa. Harmonogram praktyk obejmował również szkice obiektów i detali architektonicznych pod kierunkiem mistrza rysunku Adama Suflińskiego.
W tym roku po raz pierwszy studenci zmierzyli się z zabytkami w terenie, które stoją niezamieszkałe od wielu lat. Obiekty przeznaczone do rozbiórki, mocno nadszarpnięte przez czas, w których zachowało się bardzo dużo motywów zdobniczych integralnie związanych z terenem ich występowania.
Inwentaryzacja nielicznych obiektów drewnianych z początku XX wieku jest jedyną formą ratowania wiedzy o zasobach zabytków dla przyszłych pokoleń. Wykonana inwentaryzacja chat w miejscowościach Łuniewo Wielkie i Tymianki Moderki została przeprowadzona na obiektach o dużej symbolice zdobień, które nie zostały wpisane do rejestru zabytków. Reprezentują one architekturę zachodniego podlasia, której piękno odkrył już w latach 50- tych inspirator powstania Muzeum Rolnictwa w Ciechanowcu prof. I.Tłoczek. Ten wielce zasłużony dla Polskiej architektury naukowiec, tak opisuje związek zdobnictwa z funkcją domu "Zdobnictwo w architekturze drewnianej jest integralnie związane z funkcją budynku i jego elementów, a także z rodzajem tworzywa. Sylwetka bryły, proporcje między wymiarami zrębu i dachu, kształt okien i drzwi - są ukształtowane w zgodzie z założeniem użytkowym i konstrukcyjnym. W żadnym innym dziale architektury zagadnienie jedności funkcji, konstrukcji i piękna nie występuje tak konsekwentnie i tak czytelnie jak w budownictwie drewnianym".
Sylwester Czołomiej








































